Біля Львова збудують житло для переселенців з окупованих Криму і Донбасу
Ілюстративне фото (rv.gov.ua)
Підготовка до будівництва поселення стартує у серпні
Неподалік Львова на території села Ситихів Жовківського району облаштують житловий квартал для переселенців з окупованих Криму та Донбасу. Про це повідомляє Zaxid.Net.
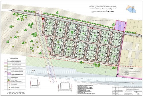
Будівництво поселення триватиме протягом найближчих кількох років на 14 гектарах. Проектом планується збудувати 110 особняків, молитовний дім-мечеть для кримських татар, греко-католицьку церкву та облаштувати необхідну інфраструктуру.
За даними видання, таке рішення Жовківська районна адміністрація затвердила ще у серпні минулого року. Йдеться про 128 земельних ділянок поза межами населеного пункту, загальною площею 14 гектарів. Як повідомив міський голова Дублян (куди входить Ситихів, - ред.) Василь Попович, на сьогодні процес зрушив з місця - Дублянська міська рада уже виділила 64 земельні ділянки переселенцям під житло.
Щодо решти ділянок, на них ще розробляється проектна документація. До цих ділянок потрібно ще провести водогін та електрику, оскільки земля під поселення знаходиться у полі.
Як розповів керівник кооперативу "Малі Дубляни" Рустем Еміралієв, роботи з проведення комунікацій розпочнуть уже всередині серпня, а профінансують їх турецькі донори. Це, зокрема мусульманська організація "Арраїд", оскільки близько 40% майбутніх жителів поселення переселенців - кримські татари.

Фото: план поселення (zaxid.net)
Будівництво житла розпочнеться після завершення проведення комунікацій. Кошти на зведення будинків, де житиме 307 переселенців з Криму та Донбасу, переселенці планують брати у кредит. За словами Рустема Еміралієва, зараз ведуться перемовини з урядом Німеччини стосовно низьковідсоткового кредиту для будівництва цього житла. За попередніми оцінками, на зведення 110 будинків необхідно близько 50 млн грн.
Нагадаємо, як повідомили у Міністерстві соціальної політики України, станом на 6 серпня число зареєстрованих переселенців з окупованих Криму та Донбасу перевищило 1,5 млн осіб.