Перший поверх Головпоштамту у Києві здадуть в оренду
18:22 23.07.2018 Пн
1 мин
Перший поверх Головпоштамту здадуть в оренду за 760 тисяч гривень
Ілюстративне фото (kiev.yarmap.ua)
В електронній системі реалізації майна виставили на продаж право оренди першого поверху Головпоштамту у Києві. Про це повідомляється на сайті "ProZorro.Продажі".
Зазначимо, що початкова ціна лота становить 760 тис. гривень, мінімальний крок збільшення ціни - 40 тис. гривень.
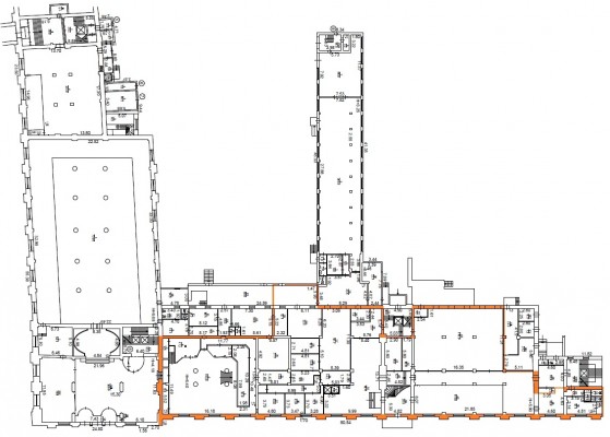
"Укрпошта" пропонує в оренду перший поверх Головпоштамту, загальна площа якого становить 1510 квадратних метрів.
"Електромережа потребує реконструкції. З боку внутрішнього двору є складські приміщення з рампою. Заїзд у внутрішній двір з вулиць Хрещатик і Бориса Грінченка", - йдеться в описі лота.
Фото (prozorro.sale)
Нагадаємо, в Україні в червні стартувала приватизація невеликих активів, які не мають стратегічного значення для економіки - через систему ProZorro

